Krasnobrodzka 6, Warszawa

Szczegoly nieruchomosci

Cena za m2: 12 218,05 /m2 PLN

Czynsz: 790.00

Rok budowy: 1976

Pietro: 2

Liczba pieter: 11

Sypialnie: 2

Stan wykonczenia: Do remontu

Kuchnia: Oddzielna

Udogodnienia

Wyposazenie

Brak danych.

Media

Ogrzewanie: miejskie
Woda: miejska
Kanalizacja: miejska
Gaz: Tak

Opis oferty

3 pokoje z loggią i windą | Krasnobrodzka 6 | do remontu

LOKALIZACJA
Mieszkanie położone jest przy ul. Krasnobrodzkiej 6 na warszawskim Targówku. To lokalizacja, która łączy wygodę codziennego życia z dobrą komunikacją i pełną infrastrukturą miejską. W okolicy znajdują się sklepy, punkty usługowe, szkoły, tereny zielone oraz wszystko, co potrzebne do wygodnego funkcjonowania na co dzień. Dodatkowym atutem jest położenie w budynku z windą, co podnosi komfort mieszkańców niezależnie od wieku i stylu życia.

KOMUNIKACJA

Dojazd autem do centrum Warszawy: 20-30 minut

Autobus:

Bródno - Podgrodzie (200m):  144, 169, 199, 245, 409, 414, 500

Metro:

M2 Bródno (1,5)

MIESZKANIE
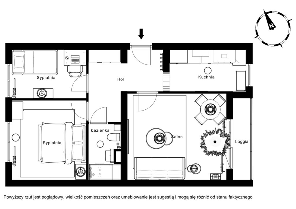
Funkcjonalne mieszkanie o bardzo dobrym układzie, składające się z salonu z wyjściem na loggię, dwóch sypialni, łazienki oraz osobnej kuchni z oknem. Lokal położony jest na drugim piętrze w budynku z windą.

To propozycja dla osób, które szukają mieszkania do własnej aranżacji i nie chcą przepłacać za cudze wybory wykończeniowe. Nieruchomość jest do generalnego remontu, co daje możliwość zaprojektowania wnętrza od podstaw zgodnie z własnymi potrzebami i gustem. Układ pomieszczeń daje duży potencjał zarówno dla rodziny, jak i dla inwestora szukającego mieszkania pod wynajem.

Jasny salon z loggią stanowi solidną bazę do stworzenia wygodnej strefy dziennej, dwie oddzielne sypialnie zapewniają prywatność i ustawność, a osobna kuchnia z oknem to rozwiązanie cenione przez wielu kupujących.

Forma własności to Spółdzielcze Własnościowe Prawo do Lokalu.

Jeżeli szukasz mieszkania z potencjałem, w dobrej warszawskiej lokalizacji i z układem, który daje wiele możliwości aranżacyjnych, ta oferta zdecydowanie zasługuje na uwagę. Zapraszam do kontaktu i umówienia prezentacji. To mieszkanie może stać się świetnym miejscem do życia albo pewną inwestycją na przyszłość.

FINANSE

  • Cena mieszkania
  • Opłaty notarialne
  • Opłaty wieczystoksięgowe
  • PCC

Multimedia

Rzuty

Rzut: Rzut 2D
Rzut: Rzut 3D

Mapa lokalizacji

Kalkulator kredytowy

Szacunek rat i kosztów kredytu hipotecznego na podstawie ceny oferty oraz WIBOR 1M/3M/6M.

Kwota kredytu
0 PLN
Oprocentowanie roczne
0.00%
Rata miesięczna (szac.)
0 PLN
Pierwsza rata (malejące)
0 PLN
Ostatnia rata (malejące)
0 PLN
Koszt odsetek
0 PLN
Prowizja banku
0 PLN
Łączny koszt kredytu
0 PLN

Źródło WIBOR: ładowanie danych...

Doradca kredytowy

UmĂłw siÄ™ z naszym doradcÄ… kredytowym